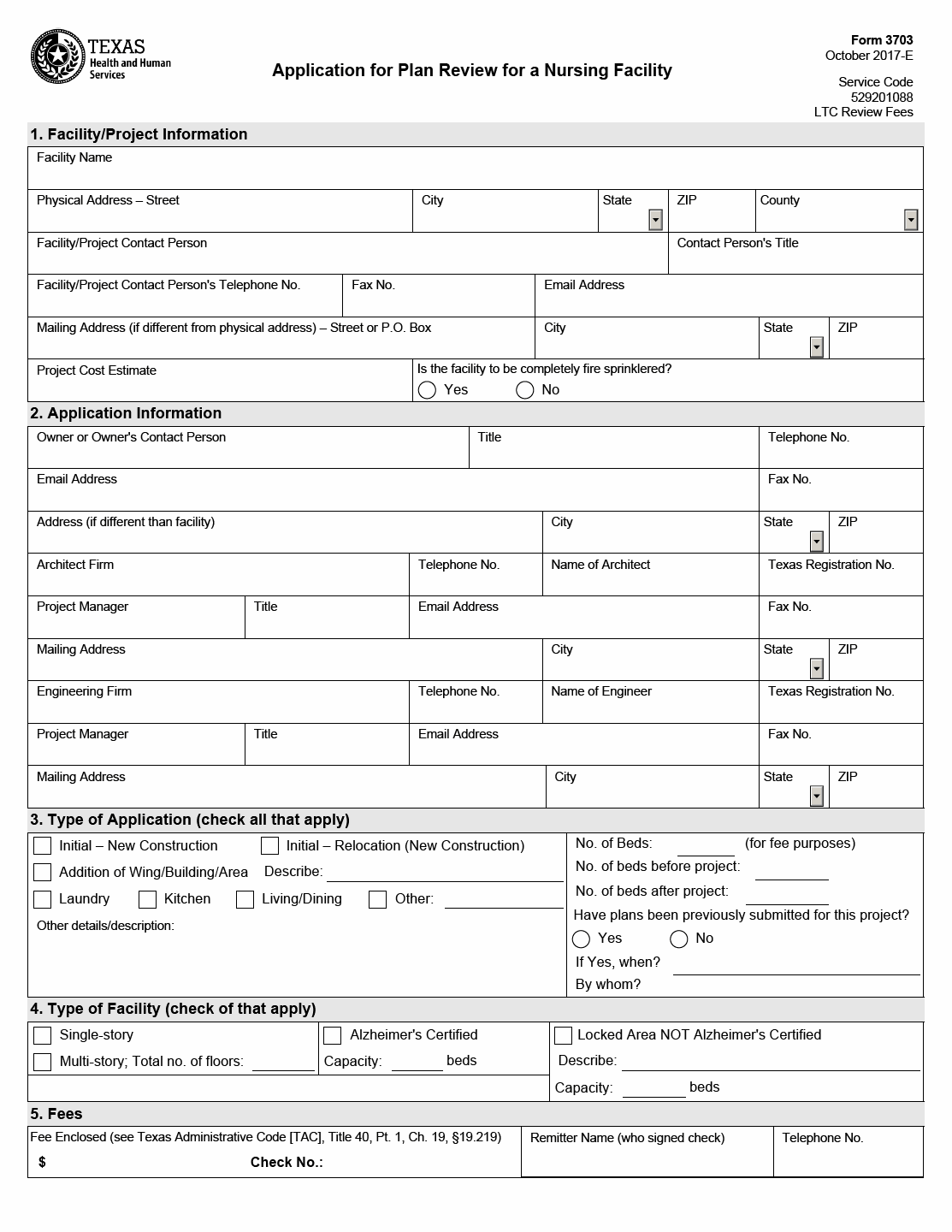
TX HHS Form 3703. Application for Plan Review for a Nursing Facility
The TX HHS Form 3703, Application for Plan Review for a Nursing Facility, is a crucial document that helps solve the problem of ensuring compliance with regulations and standards for nursing facilities in Texas. This form is typically used by architects, engineers, and facility owners who need to obtain approval from the Texas Health and Human Services (HHS) for new construction, relocation, or additions to existing facilities.
The form requires applicants to provide detailed information about their facility, including its name, contact person, and project cost estimate. It also asks about the type of application being submitted, whether it's an initial submission or a modification to an existing plan. Additionally, the form inquires about the type of facility being proposed, including its number of floors, capacity, and description.
To facilitate the review process, applicants must provide supporting documentation, such as plans and specifications, and pay applicable fees (as outlined in the Texas Administrative Code). The form also includes a section for remitter information, which is used to verify payment. By completing this application, facility owners can ensure that their project meets state regulations and standards, ultimately protecting the health, safety, and well-being of residents.
- The TX HHS Form 3703 is used by architects, engineers, and facility owners to obtain approval for new construction, relocation, or additions to existing nursing facilities in Texas.
- The form requires detailed information about the facility, including its name, contact person, project cost estimate, and type of application being submitted.
- Applicants must provide supporting documentation, such as plans and specifications, and pay applicable fees to facilitate the review process.
