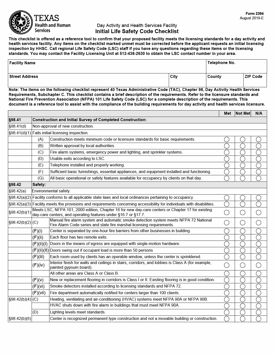
TX HHS Form 2394. Adult Day Care Facility Initial Life Safety Code Checklist
The TX HHS Form 2394, Adult Day Care Facility Initial Life Safety Code Checklist, is a practical tool designed to help day activity and health services facilities ensure compliance with licensing standards. This checklist serves as a reference guide for proposed facilities to confirm that they meet the necessary requirements before requesting an initial licensing inspection by HHSC.
The form covers essential life safety code requirements outlined in Texas Administrative Code (TAC), Chapter 98, Day Activity Health Services Requirements, Subchapter C. It includes brief descriptions of the requirements and references the National Fire Prevention Association (NFPA) 101 Life Safety Code for a complete understanding. The checklist is intended to be used by day activity and health services facilities during the initial licensure process.
The form highlights key features such as required information, conditions, and responsibilities. It also provides follow-up actions and specific procedures for ensuring compliance with life safety code requirements. By using this checklist, adult day care facility operators can ensure a safe and compliant environment for their clients. Key points to note include:
- Compliance with licensing standards is essential before requesting an initial inspection.
- The form covers life safety code requirements outlined in Texas Administrative Code (TAC), Chapter 98, Day Activity Health Services Requirements, Subchapter C.
- The checklist is intended for use during the initial licensure process for day activity and health services facilities.
