TX HHS Form 5916. Applicant/Contractor Screening Criteria
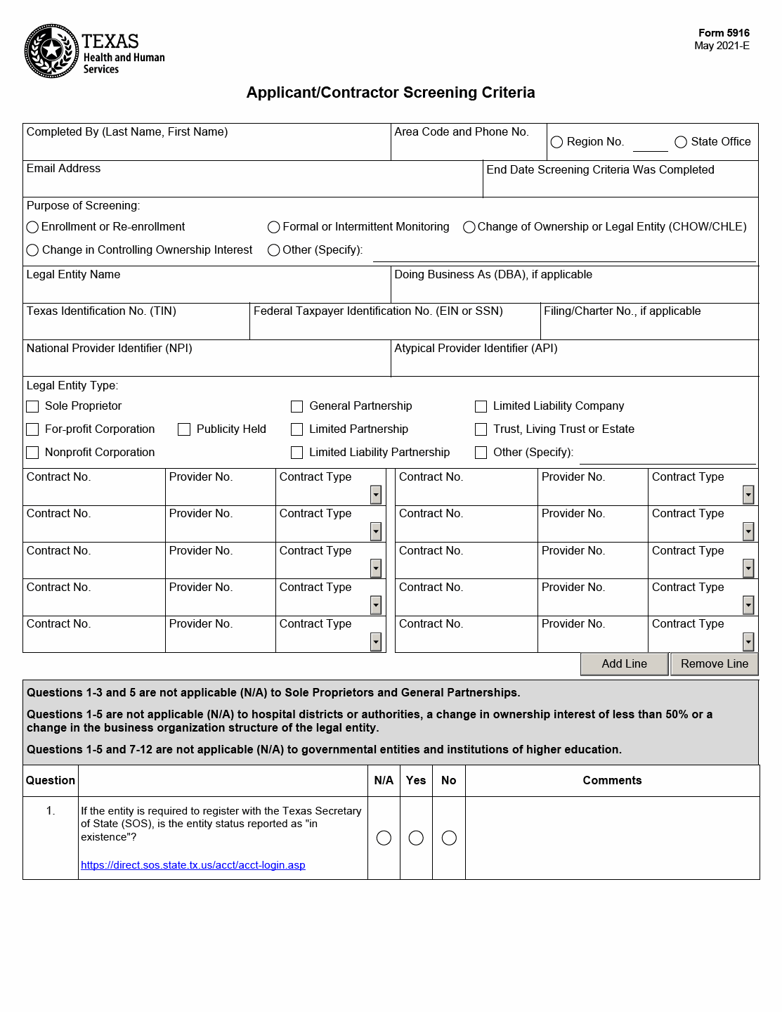
The TX HHS Form 5916, Applicant/Contractor Screening Criteria, is a crucial document that helps solve the problem of ensuring accurate and comprehensive information about applicants or contractors seeking to enroll in or re-enroll with Texas Health and Human Services (HHS) programs. This form is typically used in situations where entities need to provide screening criteria for enrolment or monitoring purposes, such as changes in ownership or legal entity.
The form requires key information from the applicant or contractor, including their name, area code and phone number, email address, and Texas Identification Number (TIN) or Federal Taxpayer Identification Number (EIN or SSN). It also asks about the purpose of screening, such as enrolment or re-enrolment, formal or intermittent monitoring, change of ownership or legal entity, or other specified reasons. Additionally, the form inquires about the applicant's or contractor's legal entity type and provides space for additional information.
Some notable features of this form include the questions that are not applicable (N/A) to certain types of entities, such as sole proprietors and general partnerships, hospital districts or authorities, and governmental entities and institutions of higher education. The form also includes a link to the Texas Secretary of State's website for entities required to register with the SOS.
- The form is used for applicant/contractor screening criteria in various situations, including enrolment or re-enrolment, monitoring, change of ownership or legal entity, and other specified reasons.
- The form requires key information from applicants or contractors, including their name, contact details, and identification numbers.
- The form includes questions that are not applicable (N/A) to certain types of entities, such as sole proprietors and general partnerships, hospital districts or authorities, and governmental entities and institutions of higher education.
