TX HHS Form 5605. Life Safety Code Overview Worksheet
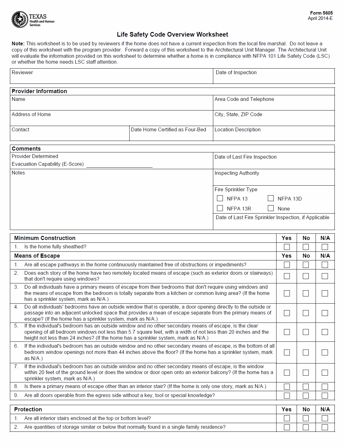
The TX HHS Form 5605, Life Safety Code Overview Worksheet, is a practical tool designed to help reviewers determine whether a home meets the requirements of the National Fire Protection Association (NFPA) 101 Life Safety Code (LSC). This worksheet is typically used by reviewers when a home does not have a current inspection from the local fire marshal.
The form requires specific information about the home, including its address, date of last fire inspection, and evacuation capability. It also asks questions about the home's construction, escape pathways, and means of escape. The worksheet is used to evaluate whether the home is in compliance with the LSC or needs staff attention. The Architectural Unit will review the completed form to determine the necessary next steps.
This form is essential for ensuring that homes meet minimum safety standards and provide a safe environment for occupants. Key features of this form include the required information about the home's construction, escape pathways, and means of escape, as well as the conditions under which the form should be used. By completing this worksheet, reviewers can identify potential issues and take corrective action to ensure compliance with the LSC.
- The form is used when a home does not have a current inspection from the local fire marshal.
- The Architectural Unit will review the completed form to determine the necessary next steps.
