TX HHS Form 3707. Fire Report for Long Term Care Facilities
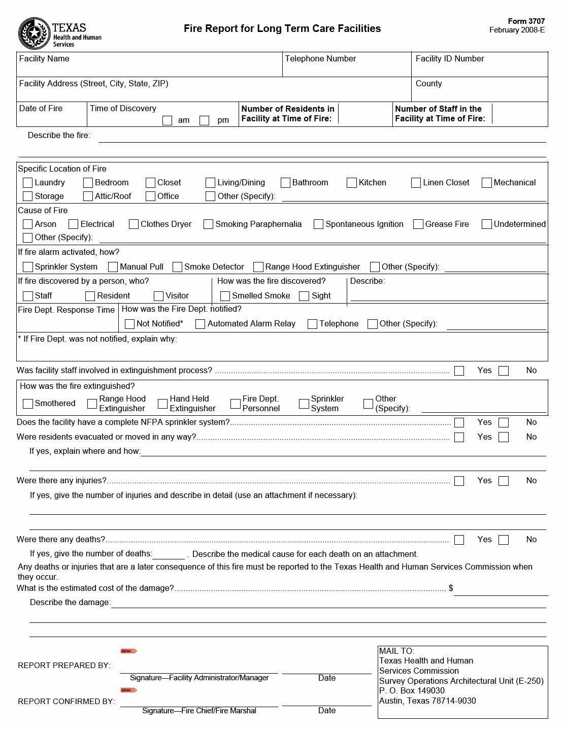
The TX HHS Form 3707, "Fire Report for Long Term Care Facilities," is a crucial document that helps facilities report fires and ensure compliance with safety regulations. This form is typically used in situations where a fire occurs at a long-term care facility, such as a nursing home or assisted living facility.
The form requires the facility administrator or manager to provide detailed information about the fire, including the date, time of discovery, number of residents and staff present, and specific location of the fire. The report also asks for descriptions of the cause of the fire, how it was discovered, and how it was extinguished. Additionally, the form inquires about any injuries or deaths that may have occurred as a result of the fire.
This form is essential for long-term care facilities to maintain accurate records of fires and ensure compliance with safety regulations. By completing this report, facilities can identify areas for improvement and take steps to prevent future fires from occurring. Key points to note include:
- The facility administrator or manager must complete the report.
- The report requires detailed information about the fire, including cause, discovery, and extinguishment.
- The form asks for descriptions of any injuries or deaths that may have occurred as a result of the fire.
