TX HHS Form 3250. Hospital Statute and Rule Waiver Request Application for Facility Physical Plant and Construction Requirements
The TX HHS Form 3250 is a crucial application for hospitals seeking to request waivers or modifications to facility physical plant and construction requirements. This form helps solve the problem of non-compliance with specific regulations, allowing hospitals to address unique circumstances that may not be covered by standard guidelines.
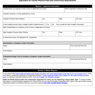
This application requires detailed information from the hospital, including its name as it appears on the license or application for license, physical street address, and ZIP code. The applicant must also provide contact information for the administrator or designee, as well as the professional design firm responsible for architectural or engineering services. Additionally, hospitals must specify which facility physical plant and construction requirement they are requesting a waiver for, noting that separate forms are required for each rule being waived.
The TX HHS Form 3250 is used in situations where a hospital needs to request flexibility from standard regulations to accommodate specific circumstances. Key features of this form include the requirement to specify the facility physical plant and construction requirement for which a waiver is being requested, as well as the need to provide detailed contact information for the applicant and their design firm.
- The TX HHS Form 3250 is used by hospitals seeking waivers or modifications to facility physical plant and construction requirements.
- Hospitals must specify which requirement they are requesting a waiver for, with separate forms required for each rule being waived.
- The application requires detailed information from the hospital, including its name, physical address, and contact information.
